La Campana Central Reversible 200 de Altex, es una campana de extracción para equipos como sartenes basculantes, marmitas y hornos de todo tipo. De serie vienen incluidos los filtros 39 x 49 cm en dotación.
Se trata de una Campana de extracción para cocina de bar, asador, y todo tipo de establecimientos que necesiten extracción y cuenten con techos bajos y espacios reducidos.
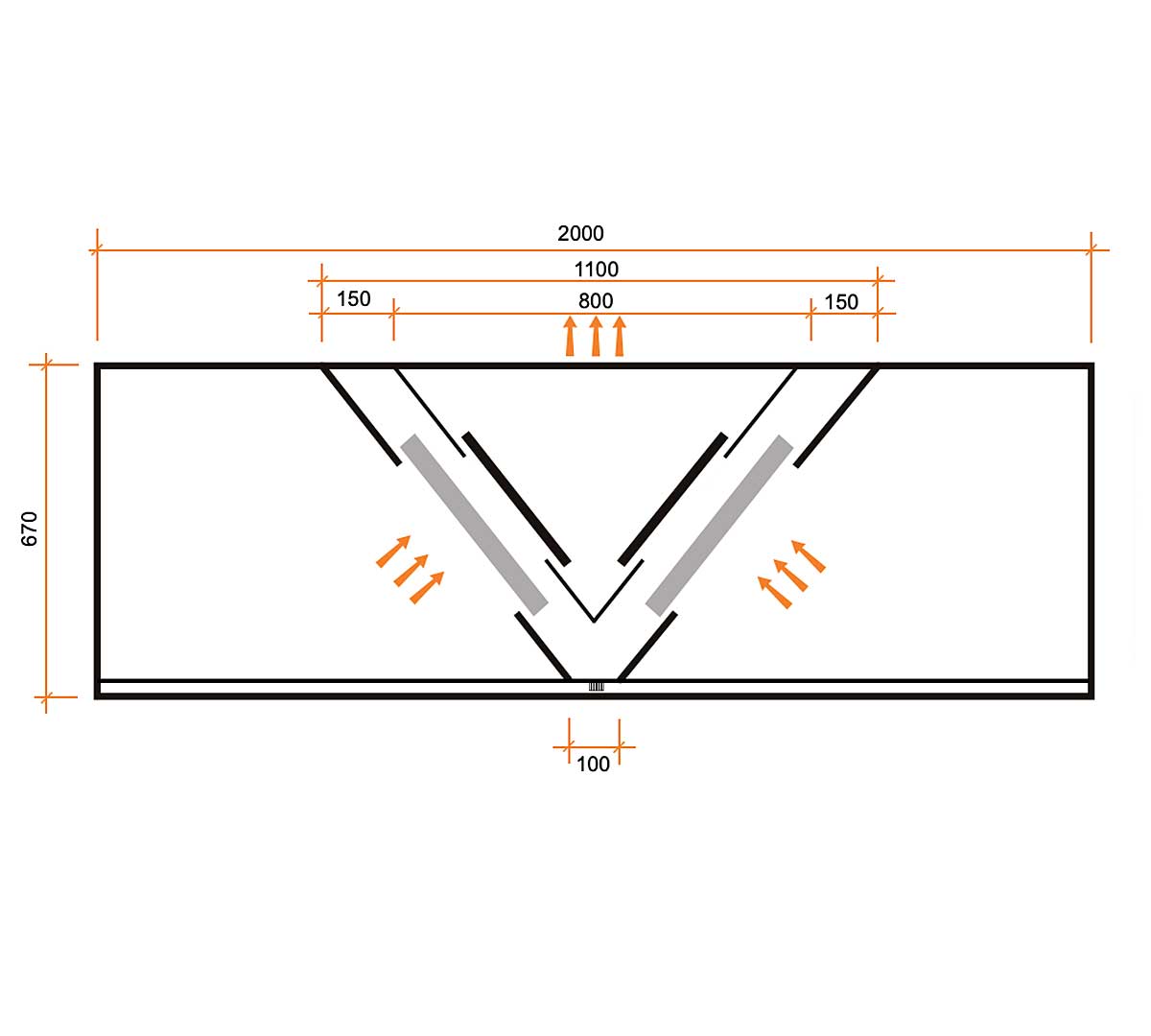
Estas son sus principales características:
Campana de extracción industrial sin motor en caso de adquirirlo como accesorio se recomienda dotar a la campana del regulador monofásico de Altex.
Incorpora Plenum.
Interior con trampillas de regulación independiente para cada filtro.
Fabricada en acero inoxidable.
Fácil instalación.
Forma diseñada para dotarla de la máxima rigidez.
Altura según normativa.
Ángulo de inclinación de los filtros según normativa (entre 45º y 60º) sobre la horizontal.
Laterales sin inclinación.
Envolvente de forma cúbica
Colector de filtros de humos, vahos y grasas que evitarán la concentración de aceites en conductos y extractor, así como, la salida masiva de estos al exterior.
Bandeja recoge grasas donde se depositan los restos de aceite de la filtración.
Tapón de drenaje en bandeja recoge grasas.
Visera con capacidad para puntuales excesos de grasa y canalización hacia el recoge grasas.
Bordes, ángulos y esquinas redondeadas para evitar accidentes.
Sistema de filtración:
Por inercia (dinámicos): Lamas de acero inox con forma trapezoidal de las mismas, que confieren a estos una mejor filtración con un mayor margen de velocidades de paso de aire, ya que, sus pronunciadas aristas imprimen en el aire una inercia incapaz de seguir por las partículas de grasa en suspensión consiguiendo así mismo una baja pérdida de carga.
Mixto: consiste en un filtro de malla, de iguales características que los anteriores de condensación y posterior a éste, un filtro de 39 x 49 x 25 cm de carbón activo, que contiene en su interior carbón activo en forma de manta impregnada cuya porosidad permite atrapar en ellos las partículas en suspensión causantes de los olores.
Equipamiento opcional:
Motor interno.
Caja de ventilación externa.
Si deseas modelos superiores a 4 metros consúltanos.
Bartscher
Brema
Difriho
Docriluc
Dynamic
Edenox
Eratos
Fainca HR
FM
Hamilton Beach
Lacor
Mes Fred
Muebles Romero
Pujadas
Repagas
Sammic
Savemah
Sayl
Vitrinas Gómez







